多类型办公室
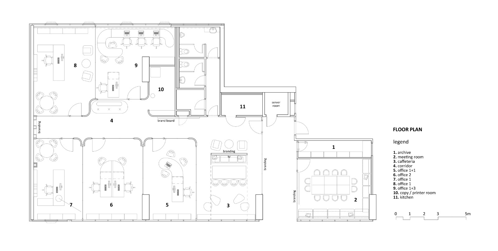
根据投资者的设计简报,主题空间被指定为六个不同类型的办公室、会议室、一个休闲区和一个自助餐厅。
项目面积:768㎡
项目类型:办公空间-IT/互联网/科技
服务内容:设计施工一体化

根据投资者的设计简报,主题空间被指定为六个不同类型的办公室、会议室、一个休闲区和一个自助餐厅。
李女士 158****80757.8万15分钟前
张学明 176****968424.3万28分钟前
王 名 138****871418.7万67分钟前
涂先生 189****905854.9万68分钟前
刘女士 155****350718.2万78分钟前
吴先生 186****865435.4万89分钟前
直营公装好品质
如果您有装修需求,诚邀您来坐一坐
或者直接联系我们 13127819121