创意工作室
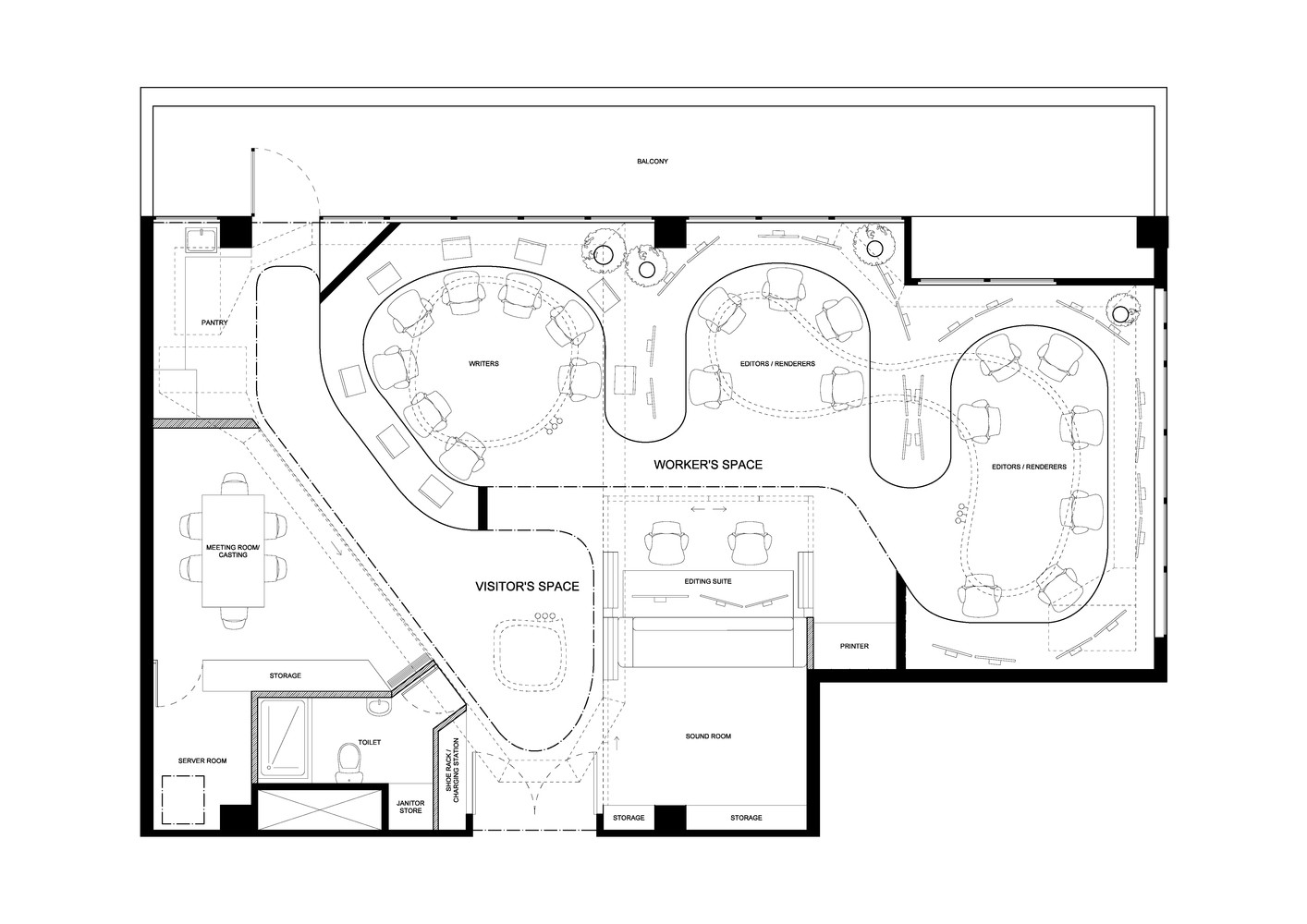
一间创意工作室,专门为客户制作一些引人注目的视频。他们的这种工作性质意味着他们经常是夜以继日的工作,因此这里除了工作还这些简单的空间可以促进大家的交流,这里的每一个项目都需要大量的工作人员。
项目面积:649㎡
项目类型:办公空间-IT/互联网/科技
服务内容:设计施工一体化

一间创意工作室,专门为客户制作一些引人注目的视频。他们的这种工作性质意味着他们经常是夜以继日的工作,因此这里除了工作还这些简单的空间可以促进大家的交流,这里的每一个项目都需要大量的工作人员。
李女士 158****80757.8万15分钟前
张学明 176****968424.3万28分钟前
王 名 138****871418.7万67分钟前
涂先生 189****905854.9万68分钟前
刘女士 155****350718.2万78分钟前
吴先生 186****865435.4万89分钟前
直营公装好品质
如果您有装修需求,诚邀您来坐一坐
或者直接联系我们 13127819121