LAMETT地板品牌上海办公室
办公室设计风格取向、舒适与否对于提升员工的工作效率和体现企业的文化起到至关重要的作用。
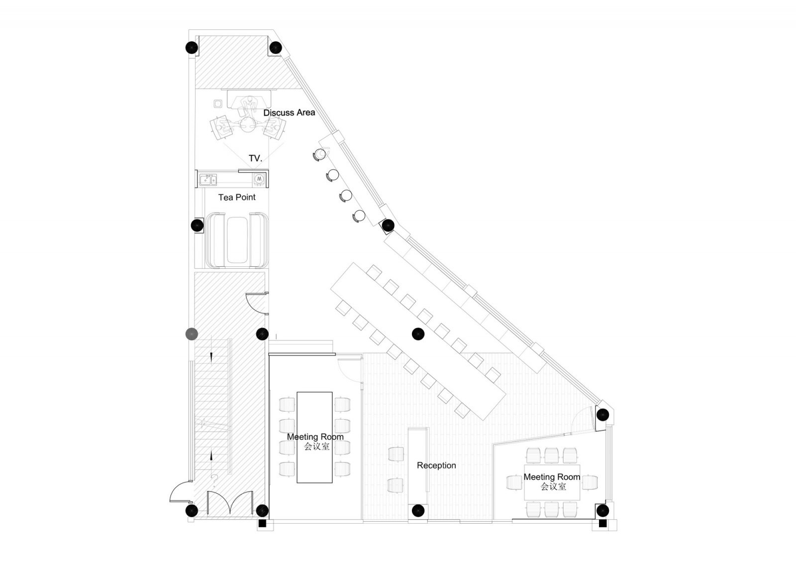
项目面积:462㎡
项目类型:办公空间-实业/消费
服务内容:设计施工一体化

办公室设计风格取向、舒适与否对于提升员工的工作效率和体现企业的文化起到至关重要的作用。
李女士 158****80757.8万15分钟前
张学明 176****968424.3万28分钟前
王 名 138****871418.7万67分钟前
涂先生 189****905854.9万68分钟前
刘女士 155****350718.2万78分钟前
吴先生 186****865435.4万89分钟前
直营公装好品质
如果您有装修需求,诚邀您来坐一坐
或者直接联系我们 13127819121