X-WAR网咖
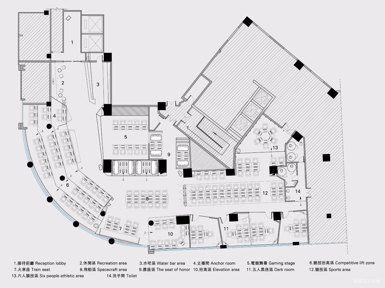
作为一个喜欢电子竞技的现代年轻人来讲,感官的体验,视觉的震撼享受都是为了追求一种独特的体验,这一点对于网咖的设计要求提出了新的高度。
项目面积:867㎡
项目类型:商业空间-网鱼/网咖
服务内容:设计施工一体化

作为一个喜欢电子竞技的现代年轻人来讲,感官的体验,视觉的震撼享受都是为了追求一种独特的体验,这一点对于网咖的设计要求提出了新的高度。
李女士 158****80757.8万15分钟前
张学明 176****968424.3万28分钟前
王 名 138****871418.7万67分钟前
涂先生 189****905854.9万68分钟前
刘女士 155****350718.2万78分钟前
吴先生 186****865435.4万89分钟前
直营公装好品质
如果您有装修需求,诚邀您来坐一坐
或者直接联系我们 13127819121