集酒吧
我们挖了一块空间给户外,让室内外联系更加亲密,也可以容纳路人避雨休憩,圆洞形态的折叠门夏天可以全部打开,室内的霓虹和音乐可以向室外溢出更多。细心观察并按下墙壁上的小按钮,镜面的移门打开,里面藏着另一个世界。穿过镜面不锈钢和灯光组成的灯光树林,来到大厅。
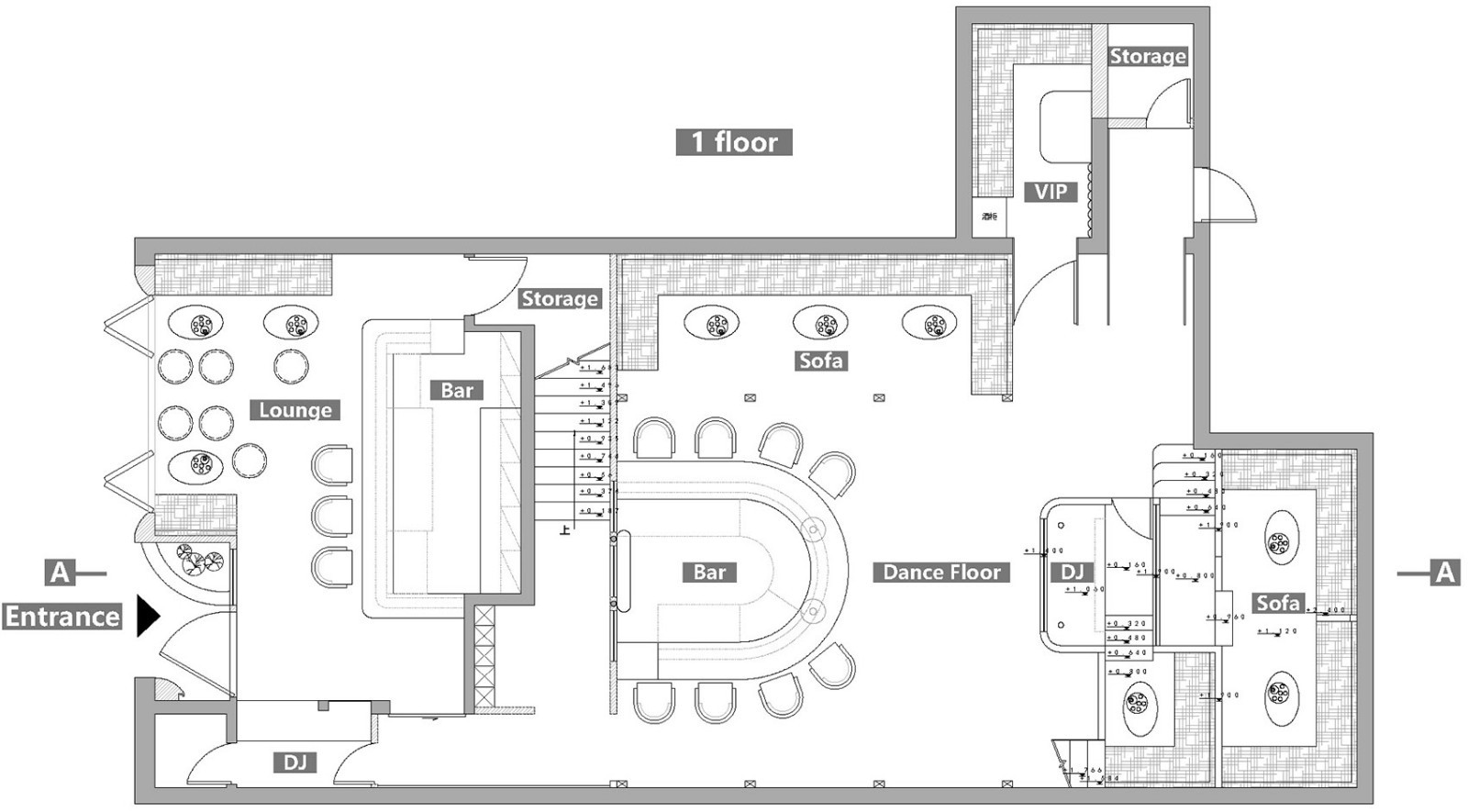
项目面积:867㎡
项目类型:商业空间-酒吧/会所/KTV
服务内容:设计施工一体化

我们挖了一块空间给户外,让室内外联系更加亲密,也可以容纳路人避雨休憩,圆洞形态的折叠门夏天可以全部打开,室内的霓虹和音乐可以向室外溢出更多。细心观察并按下墙壁上的小按钮,镜面的移门打开,里面藏着另一个世界。穿过镜面不锈钢和灯光组成的灯光树林,来到大厅。
李女士 158****80757.8万15分钟前
张学明 176****968424.3万28分钟前
王 名 138****871418.7万67分钟前
涂先生 189****905854.9万68分钟前
刘女士 155****350718.2万78分钟前
吴先生 186****865435.4万89分钟前
直营公装好品质
如果您有装修需求,诚邀您来坐一坐
或者直接联系我们 13127819121